我公司生產的斗式提升機具有輸送量大,提升高度高,運行平穩可靠,壽命長顯著優點,本提升機適于輸送粉狀,粒狀及小塊狀的無磨琢性及磨琢性小的物料,如:煤、水泥、石塊、砂、粘土、礦石等,由于提升機的牽引機構是環行鏈條,因此允許輸送溫度較高的材料(物料溫度不超過250 ℃)。一般輸送高度可達40米。TG型可達80米。
目前國內常用的斗式提升機均為垂直式,較新型,符合標準 TB3926-85的有TD型、TH型,它們的主要特征、用途及型號見表。
型式 | TD型 | TH型 |
結構特征 | 采用橡膠帶作牽引構件 | 采用鍛造的環形鏈條作為牽引構件 |
御載特征 | 采用離心式或混合式方式卸料 | 采用混合式或重力式方式卸料 |
適用輸送物料 | 松散密度ρ<1.5t/m3的粉狀、粒狀、小塊狀的無磨琢、半磨琢性物料 | 松散密度ρ<1.5t/m3的粉狀、粒狀、小塊狀的無磨琢、半磨琢性物料 |
適用溫度 | 被輸送物料溫度不得超過60℃,如采用耐熱橡膠帶時溫度不超過200℃ | 被輸送物料溫度不超過250℃ |
型號 | TD100、TD160、TD250、TD315、TD400、TD500、TD630 | TH315、TH400、T500、TH630、(TH800、TH1000)① |
提升高度 | 約在4~40m范圍內 | 約在4.5~40m范圍內 |
輸送量 | 4~238m3/h | 35~185m3/h |


斗式提升機技術性能:
斗提機型號 | TD100 | TD160 | TD250 | TD315 | ||||||||||
| 料斗型式 | Q | H | Q | H | Zd | Sd | Q | H | Zd | Sd | Q | H | Zd | Sd |
| 輸送量,m3/h | 4 | 7.6 | 9 | 16 | 16 | 27 | 20 | 36 | 38 | 59 | 28 | 50 | 42 | 67 |
| 料斗容積,L | 0.15 | 0.3 | 0.49 | 0.9 | 1.2 | 1.9 | 1.12 | 2.24 | 3.0 | 4.6 | 1.95 | 3.55 | 3.75 | 5.8 |
| 料斗運行速度,m/s | 1.4 | 1.4 | 1.6 | 1.6 | ||||||||||
| 滾筒轉速,r/min | 67 | 67 | 61 | 61 | ||||||||||
斗提機型號 | TD400 | TD500 | TD630 | |||||||||
| 料斗型式 | Q | H | Zd | Sd | Q | H | Zd | Sd | Q | H | Zd | Sd |
| 輸送量,m3/h | 40 | 76 | 68 | 110 | 63 | 116 | 96 | 154 | - | 142 | 148 | 238 |
| 料斗容積,L | 3.1 | 5.6 | 5.9 | 9.4 | 4.84 | 9.0 | 9.3 | 14.9 | - | 14 | 14.6 | 23.5 |
| 料斗運行速度,m/s | 1.8 | 1.8 | 2.0 | |||||||||
| 滾筒轉速,r/min | 55 | 55 | 48 | |||||||||

| 斗提機型號 | TD100 | TD160 | TD250 | TD315 | TD400 | TD500 | TD630 | |
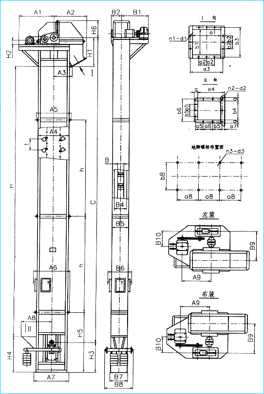
| 輪廓高度L | C+1100 | C+1365 | C+1535 | C+1640 | C+1790 | C+1865 | C+2045 | |
| 整機結構 | H | C-820 | C-930 | C-1250 | C-1245 | C-1500 | C-1700 | C-1730 |
| H4 | 600 | 700 | 800 | 850 | 950 | 900 | 1060 | |
| S | 200 | 250 | 250 | 250 | 250 | 250 | 315 | |
| 料斗 | t | 200 | 350/280 | 450/360 | 500/400 | 560/480 | 625/500 | 710 |
| b | 100 | 160 | 250 | 315 | 400 | 500 | 630 | |
| 地腳孔 | a3 | 200 | 250 | 300 | 300 | 400 | 400 | 380 |
| b3 | 310 | 400 | 538 | 648 | 768 | 900 | 1020 | |
| n3 | 8 | 8 | 8 | 8 | 8 | 8 | 10 | |
| d3 | Φ18 | Φ18 | Φ18 | Φ18 | Φ22 | Φ22 | Φ30 | |
| 上、下部機殼及外形輪廓 | H3 | 970 | 1185 | 1320 | 1488 | 1500 | 1655 | 1750 |
| H6 | 1210 | 1500 | 1800 | 1800 | 2000 | 2300 | 2500 | |
| A2 | 692 | 985 | 1175 | 1200 | 1350 | 1410 | 1590 | |
| A6 | 776 | 996 | 1266 | 1266 | 1558 | 1610 | 1890 | |
| A7 | 1050 | 1235 | 1600 | 1700 | 1980 | 2200 | 2500 | |
| B2 | 220 | 295 | 394 | 440 | 535 | 605 | 660 | |
| B4 | 370 | 461 | 596 | 706 | 828 | 980 | 1110 | |
| B5 | 330 | 475 | 610 | 710 | 835 | 1000 | 1110 | |
| 中部機殼 | A4 | 776 | 982 | 1152 | 1254 | 1548 | 1570 | 1850 |
| A5 | 805 | 1021 | 1302 | 1400 | 1580 | 1630 | 1910 | |
| B3 | 390 | 525 | 682 | 794 | 920 | 1040 | 1160 | |
| 卸料口 | H1 | 520 | 630 | 750 | 795 | 850 | 1000 | 1200 |
| A3 | 438 | 548 | 713 | 763 | 824 | 885 | 1045 | |
| a1 | 334 | 365 | 600 | 560 | 670 | 700 | 700 | |
| a2 | 120 | 150 | 200 | 230 | 295 | 355 | 300 | |
| a3 | 390 | 431 | 676 | 638 | 758 | 880 | 800 | |
| b1 | 224 | 315 | 450 | 560 | 670 | 780 | 900 | |
| b2 | 95 | 150 | 200 | 230 | 295 | 300 | 280 | |
| b3 | 280 | 381 | 526 | 638 | 758 | 800 | 1000 | |
| n1 | 12 | 12 | 12 | 12 | 12 | 12 | 14 | |
| d1 | Φ12 | Φ12 | Φ12 | Φ12 | Φ14 | Φ18 | Φ18 | |
| 進料口 | H5 | 900 | 1320 | 1320 | 1320 | 1600 | 1600 | 1885 |
| a4 | 280 | 355 | 355 | 400 | 450 | 500 | 560 | |
| a5 | 80 | 58 | 58 | 80 | 100 | 65 | 85 | |
| a6 | 100 | 150 | 150 | 160 | 175 | 210 | 160 | |
| a7 | 19 | 45 | 45 | 38 | 40 | 40 | 30 | |
| b4 | 220 | 320 | 320 | 400 | 450 | 500 | 630 | |
| b5 | 100 | 155 | 155 | 160 | 215 | 220 | 160 | |
| b6 | 250 | 370 | 370 | 460 | 510 | 550 | 700 | |
| n2 | 9 | 9 | 9 | 9 | 9 | 9 | 12 | |
| d2 | Φ10 | Φ12 | Φ12 | Φ12 | Φ14 | Φ14 | Φ14 | |
| 斗提機型號 | TD100 | TD160 | TD250 | TD315 | TD400 | TD500 | TD630 | |
| 輪廓高度L | C+1100 | C+1365 | C+1535 | C+1640 | C+1790 | C+1865 | C+2045 | |
| 整機結構 | H | C-820 | C-930 | C-1250 | C-1245 | C-1500 | C-1700 | C-1730 |
| H4 | 600 | 700 | 800 | 850 | 950 | 900 | 1060 | |
| S | 200 | 250 | 250 | 250 | 250 | 250 | 315 | |
| 料斗 | t | 200 | 350/280 | 450/360 | 500/400 | 560/480 | 625/500 | 710 |
| b | 100 | 160 | 250 | 315 | 400 | 500 | 630 | |
| 地腳孔 | a3 | 200 | 250 | 300 | 300 | 400 | 400 | 380 |
| b3 | 310 | 400 | 538 | 648 | 768 | 900 | 1020 | |
| n3 | 8 | 8 | 8 | 8 | 8 | 8 | 10 | |
| d3 | Φ18 | Φ18 | Φ18 | Φ18 | Φ22 | Φ22 | Φ30 | |
| 上、下部機殼及外形輪廓 | H3 | 970 | 1185 | 1320 | 1488 | 1500 | 1655 | 1750 |
| H6 | 1210 | 1500 | 1800 | 1800 | 2000 | 2300 | 2500 | |
| A2 | 692 | 985 | 1175 | 1200 | 1350 | 1410 | 1590 | |
| A6 | 776 | 996 | 1266 | 1266 | 1558 | 1610 | 1890 | |
| A7 | 1050 | 1235 | 1600 | 1700 | 1980 | 2200 | 2500 | |
| B2 | 220 | 295 | 394 | 440 | 535 | 605 | 660 | |
| B4 | 370 | 461 | 596 | 706 | 828 | 980 | 1110 | |
| B5 | 330 | 475 | 610 | 710 | 835 | 1000 | 1110 | |
| 中部機殼 | A4 | 776 | 982 | 1152 | 1254 | 1548 | 1570 | 1850 |
| A5 | 805 | 1021 | 1302 | 1400 | 1580 | 1630 | 1910 | |
| B3 | 390 | 525 | 682 | 794 | 920 | 1040 | 1160 | |
| 卸料口 | H1 | 520 | 630 | 750 | 795 | 850 | 1000 | 1200 |
| A3 | 438 | 548 | 713 | 763 | 824 | 885 | 1045 | |
| a1 | 334 | 365 | 600 | 560 | 670 | 700 | 700 | |
| a2 | 120 | 150 | 200 | 230 | 295 | 355 | 300 | |
| a3 | 390 | 431 | 676 | 638 | 758 | 880 | 800 | |
| b1 | 224 | 315 | 450 | 560 | 670 | 780 | 900 | |
| b2 | 95 | 150 | 200 | 230 | 295 | 300 | 280 | |
| b3 | 280 | 381 | 526 | 638 | 758 | 800 | 1000 | |
| n1 | 12 | 12 | 12 | 12 | 12 | 12 | 14 | |
| d1 | Φ12 | Φ12 | Φ12 | Φ12 | Φ14 | Φ18 | Φ18 | |
| 進料口 | H5 | 900 | 1320 | 1320 | 1320 | 1600 | 1600 | 1885 |
| a4 | 280 | 355 | 355 | 400 | 450 | 500 | 560 | |
| a5 | 80 | 58 | 58 | 80 | 100 | 65 | 85 | |
| a6 | 100 | 150 | 150 | 160 | 175 | 210 | 160 | |
| a7 | 19 | 45 | 45 | 38 | 40 | 40 | 30 | |
| b4 | 220 | 320 | 320 | 400 | 450 | 500 | 630 | |
| b5 | 100 | 155 | 155 | 160 | 215 | 220 | 160 | |
| b6 | 250 | 370 | 370 | 460 | 510 | 550 | 700 | |
| n2 | 9 | 9 | 9 | 9 | 9 | 9 | 12 | |
| d2 | Φ10 | Φ12 | Φ12 | Φ12 | Φ14 | Φ14 | Φ14 | |
斗提機型號 | 傳動裝置代號 | 電動機 | ZQ減速器型號 | 重量kg | ||
型號 | 功率,KW | 右裝傳動裝置 | 左裝傳動裝置 | |||
| TD100 | C1 | Y100L-6 | 1.5 | ZQ25-16-IIIZ | ZQ25-16-IVZ | 230 |
| C2 | Y112M-6 | 2.2 | 240 | |||
| TD160 | C1 | Y132S-6 | 3 | ZQ35-12.5-IIIZ | ZQ35-12.5-IVZ | 472 |
| C2 | Y132M1-6 | 4 | 490 | |||
| C3 | Y132M2-6 | 5.5 | ZQ40-12.5-IIIZ | ZQ40-12.5-IVZ | 563 | |
| C4 | Y160M-6 | 7.5 | 621 | |||
| TD250 | C1 | Y132M2-6 | 5.5 | ZQ40-16-IIIZ | ZQ40-16-IVZ | 576 |
| C2 | Y160M-6 | 7.5 | 616 | |||
| C3 | Y160L-6 | 11 | ZQ50-16-IIIZ | ZQ50-16-IVZ | 838 | |
| C4 | Y180L-6 | 15 | 903 | |||
| TD315 | C1 | Y160M-6 | 7.5 | ZQ40-16-IIIZ | ZQ40-16-IVZ | 645 |
| C2 | Y160M-4 | 11 | ZQ50-20-VIZ | ZQ50-20-VZ | 855 | |
| C3 | Y160L-4 | 15 | 883 | |||
| TD400 | C1 | Y180L-6 | 15 | ZQ50-16-IIIZ | ZQ50-16-IVZ | 936 |
| C2 | Y200L1-6 | 18.5 | ZQ65-16-VIZ | ZQ65-16-VZ | 1687 | |
| C3 | Y200L2-6 | 22 | 1702 | |||
| C4 | Y225M-6 | 30 | 1787 | |||
| TD500 | C1 | Y180L-6 | 15 | ZQ50-16-IIIZ | ZQ50-16-IVZ | 1724 |
| C2 | Y200L1-6 | 18.5 | ZQ65-16-VIZ | ZQ65-16-VZ | 1760 | |
| C3 | Y200L2-6 | 22 | 1775 | |||
| C4 | Y225M-6 | 30 | 1810 | |||
| TD630 | C1 | Y200L2-6 | 2 | ZQ65-20-VIZ | ZQ65-20-VZ | 1876 |
| C2 | T225M-6 | 30 | 1952 | |||
斗提機型號 | 傳動裝置尺寸(配置ZQ型減速器) | ||||||
制法 | H2 | A8 | B6 | B7 | A1 | B2 | |
| TD100 | C1 | 165 | 620 | 504.5 | 315 | 900 | 624.5 |
| C2 | 619 | 322 | |||||
| TD160 | C1 | 290 | 868 | 674 | 405 | 1245 | 914 |
| C2 | 424 | ||||||
| C3 | 340 | 918 | 729 | 434 | |||
| C4 | 469 | ||||||
| TD250 | C1 | 340 | 898.5 | 819 | 434 | 1273 | 1021 |
| C2 | 480 | ||||||
| C3 | 410 | 924 | 839 | 566 | 1295 | 1055 | |
| C4 | 591.5 | ||||||
| TD315 | C1 | 335 | 828 | 918 | 497 | 1290 | 1147 |
| C2 | 405 | 925 | 938 | 558 | 1420 | 1300 | |
| C3 | 1050 | 563 | |||||
| C4 | |||||||
| TD400 | C1 | 405 | 1045 | 1041.5 | 592 | 1600 | 1443 |
| C2 | 445 | 1156 | 1148.5 | 745 | 2155 | ||
| C3 | |||||||
| C4 | 1106 | 752 | |||||
| TD500 | C1 | 445 | 1252.5 | 1120 | 720.5 | 1640 | 1705 |
| C2 | 1224 | 745.5 | |||||
| C3 | |||||||
| C4 | 764.5 | ||||||
| TD630 | C1 | 450 | 1106 | 1318 | 764.5 | 1725 | 1765 |
| C2 | 1206 | 786 | |||||
TH型斗提機外形及安裝尺寸

斗提機型號 | 驅動裝置 | 電動機 | 減速器型號 | 相關尺寸,mm | 重量kg | |||
型號 | 功率KW | A1 | B1 | H2 | ||||
| TH160 | Y2Y112 | Y100L1-4 | 2.2 | ZLY112-11.2-I(S)/II(N) | 728 | 815 | 205 | 89 |
| Y3Y112 | Y100L2-4 | 3 | 96 | |||||
| Y4Y112 | Y112M-4 | 4 | 104 | |||||
| Y5Y112 | Y132S-4 | 5.5 | 130 | |||||
| Y7Y125 | Y132M-4 | 7.5 | ZLY125-11.2-I(S)/II(N) | 220 | 153 | |||
| TH200 | Y3Y112 | Y100L2-4 | 3 | ZLY112-12.5I(S)/II(N) | 734 | 960 | 205 | 112 |
| Y4Y112 | Y112M-4 | 4 | 127 | |||||
| Y5Y112 | Y132S-4 | 5.5 | 154 | |||||
| Y7Y125 | Y132M-4 | 7.5 | ZLY125-12.5-I(S)/II(N) | 220 | 163 | |||
| Y11Y140 | Y160M-4 | 11 | ZLY140-12.5-I(S)/II(N) | 260 | 235 | |||
| TH250 | Y4Y112 | Y112M-4 | 4 | ZLY112-18-I(S)/II(N) | 698 | 1023 | 205 | 184 |
| Y5Y125 | Y132S-4 | 5.5 | ZLY125-18-I(S)/II(N) | 220 | 195 | |||
| Y7Y140 | Y132M-4 | 7.5 | ZLY140-18-I(S)/II(N) | 260 | 278 | |||
| Y11Y160 | Y160M-4 | 11 | ZLY160-18-I(S)/II(N) | 280 | 360 | |||
| Y15Y180 | Y160L-4 | 15 | ZLY180-18-I(S)/II(N) | 320 | 416 | |||
| TH315 | Y5Y125 | Y132S-4 | 5.5 | ZLY125-20-I(S)/II(N) | 718 | 1025 | 220 | 205 |
| Y7Y140 | Y132M-4 | 7.5 | ZLY140-20-I(S)/II(N) | 260 | 310 | |||
| Y11Y160 | Y160M-4 | 11 | ZLY160-20-I(S)/II(N) | 280 | 380 | |||
| Y15Y180 | Y160L-4 | 15 | ZLY180-20-I(S)/II(N) | 720 | 1156 | 320 | 536 | |
| Y18Y180 | Y180M-4 | 18.5 | 564 | |||||
| TH400 | Y7Y140 | Y132M-4 | 7.5 | ZLY140-20-I(S)/II(N) | 854 | 1318 | 260 | 520 |
| Y11Y160 | Y160M-4 | 11 | ZLY160-20-I(S)/II(N) | 280 | 575 | |||
| Y15Y180 | Y160L-4 | 15 | ZLY180-20-I(S)/II(N) | 320 | 672 | |||
| Y18Y180 | Y180M-4 | 18.5 | 690 | |||||
| Y22Y200 | Y180L-4 | 22 | ZLY200-20-I(S)/II(N) | 345 | 827 | |||
| TH500 | Y11Y160 | Y160M-4 | 11 | ZLY160-20-I(S)/II(N) | 1042 | 1394 | 280 | 658 |
| Y15Y180 | Y160L-4 | 15 | ZLY180-20-I(S)/II(N) | 320 | 708 | |||
| Y18Y180 | Y180M-4 | 18.5 | 830 | |||||
| Y22Y200 | Y180L-4 | 22 | ZLY200-20-I(S)/II(N) | 345 | 858 | |||
| Y30Y224 | Y200L-4 | 30 | ZLY224-20-I(S)/II(N) | 370 | 946 | |||
| TH630 | Y18Y200 | Y180M-4 | 18.5 | ZSY200-22.4-I(S)/II(N) | 1042 | 1589 | 345 | 1098 |
| Y22Y200 | Y180L-4 | 22 | ZSY224-22.4-I(S)/II(N) | 1157 | ||||
| Y30Y224 | Y200L-4 | 30 | 370 | 1206 | ||||
| Y37Y250 | Y225S-4 | 37 | ZSY224-22.4-I(S)/II(N) | 400 | 1434 | |||
| Y45Y250 | Y225M-4 | 45 | 1578 | |||||
| TH800 | Y30Y224 | Y200L-4 | 30 | ZSY224-28-I(S)/II(N) | 1178 | 1904 | 370 | 1556 |
| Y37Y250 | Y225S-4 | 37 | ZSY250-28-I(S)/II(N) | 400 | 1784 | |||
| Y45Y280 | Y225M-4 | 45 | ZSY250-28-I(S)/II(N) | 455 | 1928 | |||
| Y55Y315 | Y250M-4 | 55 | ZSY315-28-I(S)/II(N) | 495 | 2184 | |||
| Y75Y335 | Y280S-4 | 75 | ZSY355-28-I(S)/II(N) | 540 | 2724 | |||
| TH1000 | Y37Y280 | Y225S-4 | 37 | ZSY280-31.5-I(S)/II(N) | 455 | 2184 | ||
| Y45Y315 | Y225M-4 | 45 | ZSY315-31.5-I(S)/II(N) | 495 | 2578 | |||
| Y55Y355 | Y250M-4 | 55 | ZSY355-31.5-I(S)/II(N) | 540 | 3124 | |||
| Y75Y355 | Y280S-4 | 75 | 3450 | |||||
| Y90Y400 | Y280M-4 | 90 | ZSY400-31.5-I(S)/II(N) | 590 | 4039 | |||
| TH1250 | Y55Y355 | Y250M-4 | 55 | ZSY355-31.5-I(S)/II(N) | 1285 | 2345 | 540 | 3689 |
| Y75Y355 | Y280S-4 | 75 | 4015 | |||||
| Y90Y400 | Y280M-4 | 90 | ZSY400-31.5-I(S)/II(N) | 590 | 4604 | |||
| Y110Y400 | Y315S-4 | 110 | 4689 | |||||
| Y132Y450 | Y315M1-4 | 132 | ZSY450-31.5-I(S)/II(N) | 640 | 5716 | |||
蘇公網安備 32062102000309號